2579 Helmsman Road (Sold)
Johns Island, SC
Property Details
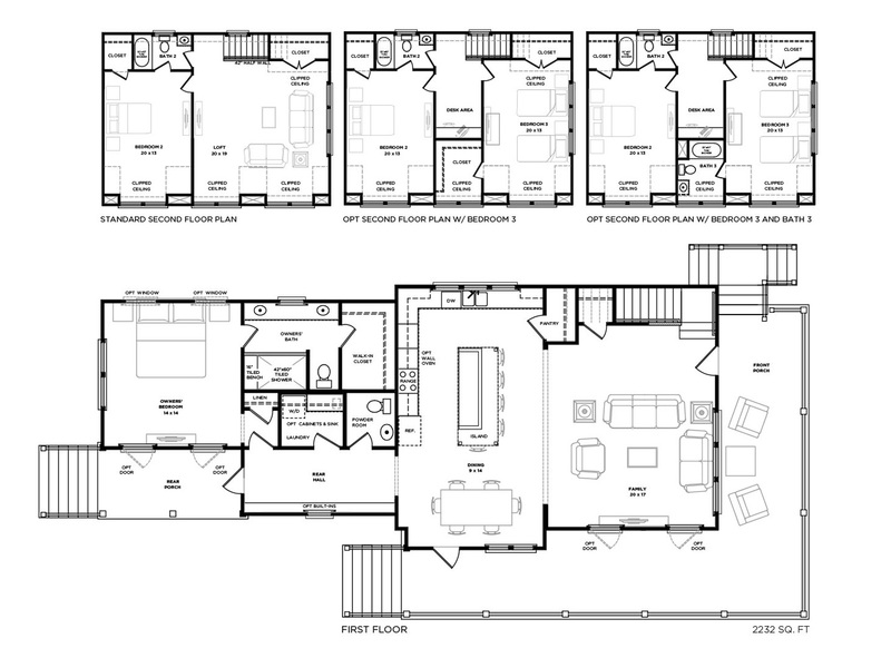
- Interior: 2,232 Heated Sq Ft
- Lot: 0.13 Acres
- Property View: Interior
- Neighborhood: Jack Island
Property Description:
Welcome to the enchanting Butterfly Cottage at 2579 Helmsman, a masterpiece crafted by renowned architect Julia Star Sanford and brought to life by Saussy Burbank to capture the magnificent beauty of the surrounding landscapes. Nestled amidst the picturesque streetscapes of Jack Island, the Butterfly Cottage is designed with a passion for outdoor living. It boasts a generous wrap-around porch seamlessly woven with the serene and lush landscapes just steps out the back door.... [Read More]
Welcome to the enchanting Butterfly Cottage at 2579 Helmsman, a masterpiece crafted by renowned architect Julia Star Sanford and brought to life by Saussy Burbank to capture the magnificent beauty of the surrounding landscapes. Nestled amidst the picturesque streetscapes of Jack Island, the Butterfly Cottage is designed with a passion for outdoor living. It boasts a generous wrap-around porch seamlessly woven with the serene and lush landscapes just steps out the back door. The first-floor primary bedroom, your personal sanctuary, is nestled among the trees with easy access to the heart of the home—just a skip away from the kitchen and main living areas. Wander up to the second floor with its abundance of space for guests or family to unwind. Discover two additional bedrooms, each with en suite bathrooms, and a perfectly appointed office nook. Elevate your lifestyle with this exquisite coastal retreat, where every sunset promises a moment of pure bliss. Welcome home to Kiawah River.
Jack Island is our community at low tide—active, connected, and full of movement. Set at the heart of our community, it’s surrounded by water in every direction, with Jack Island Pond at its center and the Kiawah River just beyond. Inspired by the Sea Islands’ historic fishing villages, this neighborhood offers a rare blend of waterfront character and easy access to many of the area’s favorite shared spaces.
Where the Community Gathers
This lively village center features trails that weave between homes and connect to nearby amenities, including the Spring House, dog park, neighborhood pier, and a collection of riverfront gathering spots.
explore the array of our resort-style amenities
Every facet of Kiawah River is meticulously designed to align with the great outdoors—where your spirit finds serenity, your body renews its vigor, and your mind discovers tranquility.
Gather
Kiawah River’s 9,000-square-foot swim and fitness club offers a junior Olympic pool, leisure pool, and shaded bar with poolside dining. Thoughtfully designed for wellness and connection, it features a full-service kitchen, cabanas, hot tub, outdoor fireplace, saunas, steam rooms, and multipurpose spaces for boutique fitness and private gatherings—all with sweeping views of the Kiawah River. Stay awhile and take in a stunning sunset over the river—it’s the perfect end to a day well spent.
Grow
Welcome to Charleston’s first agrihood… a neighborhood that fosters farm-to-table living in a local generational environment. Kiawah River Farm is a working farm partnership with local Johns Island farmers complete with goats, beef cattle, chickens, bees, heirloom produce and flower fields. Bike to Rosebank Farms for fresh, locally grown produce, artisan-made gifts, baked goods, and ready-to-enjoy fare—from picnic sandwiches to Southern-inspired prepared dinners—all bringing the spirit of the sea islands to your table.
Experience
Savor light bites and signature cocktails at The Willet Room, or enjoy elevated Lowcountry cuisine on the riverfront porch at Linnette’s. For the ultimate in relaxation, indulge in a luxurious treatment at Aster Spa. Named the #1 Resort in South Carolina for Travel + Leisure’s World’s Best Awards 2025.
Discover
From sunrise paddles to sunset cruises, Coastal Expeditions connects residents and guests to the natural rhythms of the river. As Kiawah River’s onsite outfitter, they offer guided kayak and paddleboard tours, boat excursions, and naturalist-led adventures designed to immerse you in the beauty of the Lowcountry. Whether exploring winding creeks, spotting dolphins and wading birds, or learning about the region’s ecology, every outing is a chance to discover the wonder just beyond your doorstep.
Explore
Step into a world of delightful interaction with our animal friends at the Goatery. Prepare to be greeted with affection by a lively group of goats and owner Missy Farkouh nurturing a thriving, regenerative farm. Immerse yourself in their story as you take a tour, consider joining a goat yoga class, try local cheeses, or explore the Creamery’s other tempting offerings. Book your visit today.
Wander
Nature drives everything. Wander through decades of land stewardship and meticulous planning guided by our 20-mile network of nature trails connecting our dedicated parks. These parks, nestled along winding paths and adorned with cozy benches, reveal their own blend of tangible and intangible treasures. Explore Oak Park’s inviting outdoor dining space, complete with grills and a cozy fireplace. Wander through Jack Island Park, where benches await along winding nature trails encircling Jack Island Lake. Stroll the serene pathways of Old Friends Park, offering tranquil nature trails along the saltwater marsh. At Sea Island Park, savor the outdoors with a grilling and dining area, plus a community kayak launch. These shared greenspaces and intertwining trails, nestled amidst palmetto and oak tree vistas, are a cherished gift for all who call Kiawah River home.







Gather
Kiawah River’s 9,000-square-foot swim and fitness club offers a junior Olympic pool, leisure pool, and shaded bar with poolside dining. Thoughtfully designed for wellness and connection, it features a full-service kitchen, cabanas, hot tub, outdoor fireplace, saunas, steam rooms, and multipurpose spaces for boutique fitness and private gatherings—all with sweeping views of the Kiawah River. Stay awhile and take in a stunning sunset over the river—it’s the perfect end to a day well spent.

Grow
Welcome to Charleston’s first agrihood… a neighborhood that fosters farm-to-table living in a local generational environment. Kiawah River Farm is a working farm partnership with local Johns Island farmers complete with goats, beef cattle, chickens, bees, heirloom produce and flower fields. Bike to Rosebank Farms for fresh, locally grown produce, artisan-made gifts, baked goods, and ready-to-enjoy fare—from picnic sandwiches to Southern-inspired prepared dinners—all bringing the spirit of the sea islands to your table.

Experience
Savor light bites and signature cocktails at The Willet Room, or enjoy elevated Lowcountry cuisine on the riverfront porch at Linnette’s. For the ultimate in relaxation, indulge in a luxurious treatment at Aster Spa. Named the #1 Resort in South Carolina for Travel + Leisure’s World’s Best Awards 2025.

Discover
From sunrise paddles to sunset cruises, Coastal Expeditions connects residents and guests to the natural rhythms of the river. As Kiawah River’s onsite outfitter, they offer guided kayak and paddleboard tours, boat excursions, and naturalist-led adventures designed to immerse you in the beauty of the Lowcountry. Whether exploring winding creeks, spotting dolphins and wading birds, or learning about the region’s ecology, every outing is a chance to discover the wonder just beyond your doorstep.

Explore
Step into a world of delightful interaction with our animal friends at the Goatery. Prepare to be greeted with affection by a lively group of goats and owner Missy Farkouh nurturing a thriving, regenerative farm. Immerse yourself in their story as you take a tour, consider joining a goat yoga class, try local cheeses, or explore the Creamery’s other tempting offerings. Book your visit today.

Wander
Nature drives everything. Wander through decades of land stewardship and meticulous planning guided by our 20-mile network of nature trails connecting our dedicated parks. These parks, nestled along winding paths and adorned with cozy benches, reveal their own blend of tangible and intangible treasures. Explore Oak Park’s inviting outdoor dining space, complete with grills and a cozy fireplace. Wander through Jack Island Park, where benches await along winding nature trails encircling Jack Island Lake. Stroll the serene pathways of Old Friends Park, offering tranquil nature trails along the saltwater marsh. At Sea Island Park, savor the outdoors with a grilling and dining area, plus a community kayak launch. These shared greenspaces and intertwining trails, nestled amidst palmetto and oak tree vistas, are a cherished gift for all who call Kiawah River home.
Curious about this property? Let us help you learn more.
"*" indicates required fields
By sharing your email, you'll receive occasional notes from Kiawah River—including community updates, events, and new offerings.




